Transform Your Space with an Engineered Dormer or Roof Modification
Discover how innovative engineering can elevate your home’s aesthetic and functionality with expertly designed dormers and roof modifications.
Introduction
A Room with a View: Engineering a Dormer
That dark, underutilized attic space holds incredible potential. By adding a dormer or modifying your roofline, you can transform a cramped storage area into a light-filled living space or simply enhance your home’s curb appeal. The project promises more space, better views, and a fresh look.
But as with any project that involves altering your home’s “lid,” a roof modification is a significant structural engineering challenge. A roof’s framing—its rafters, trusses, and beams—is a complex system designed to do one primary job: support the gravity and lateral loads. Altering this system requires precision and expertise to avoid serious structural issues.

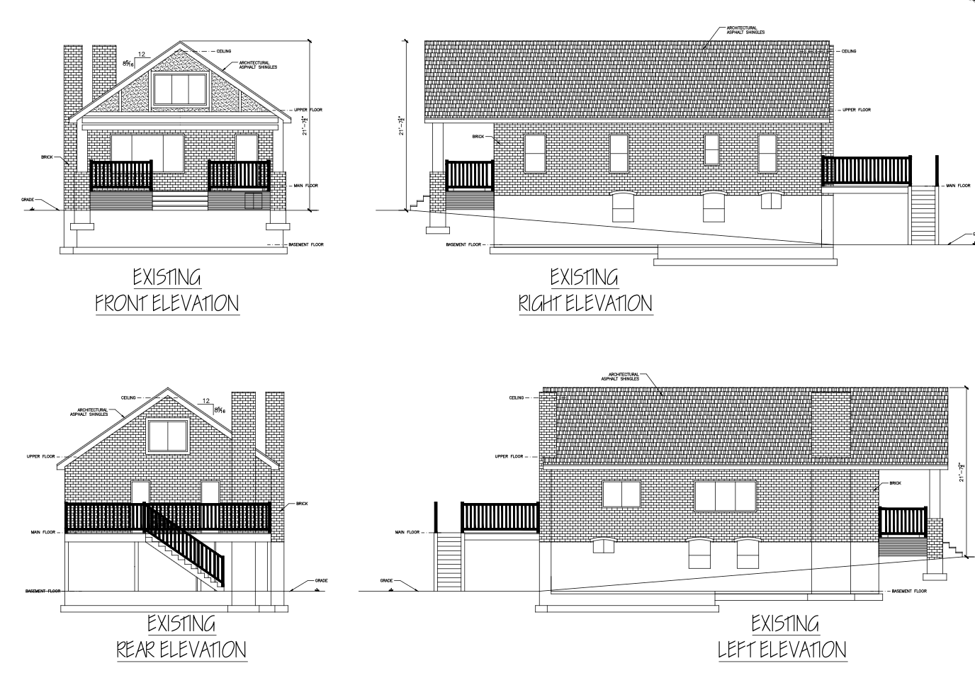
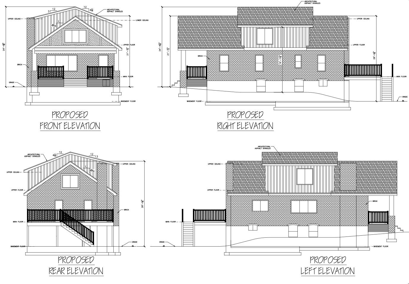
Plan Courtesy of Peak Home Design. Copyright 2025
The Structural Challenge
Why a Roof Engineer is Essential
A dormer addition is more than just a window. It involves cutting through your existing roof’s framing, which is a key vertical and lateral load-bearing component. Without a professional plan, you risk compromising the roof’s ability to withstand snow loads, wind, seismic loads, and its own weight.
This is where a roof engineer becomes your most valuable partner. They don’t simply look at your attic; they analyze the entire system, from the ridge beam down to the footings, to ensure any modification maintains the integrity of the whole structure.
Understanding the Engineering Process
What a Structural Engineer Does for Your Project
Our team at Blue Sky Engineering works with you to ensure your roof modification structural engineering is done correctly, safely, and efficiently. Our process for a dormer addition structural engineer includes:
Assessing the Existing Framing: We will evaluate your existing roof and ceiling rafters or trusses. The existing load bearing and shear walls below, down to the foundation and footings. This step is critical to determine their current condition and their capacity to handle new loads.
Designing the New Framing: Once the assessment is complete, we design the framing for new dormer. This includes specifying the size and material of new headers, rafters, and beams that will support the new opening while seamlessly integrating with the existing roof structure. We reinforce the existing ceiling rafters as needed to ensure a strong floor that doesn’t bounce and bend. If required sheer wall and footing reinforcement is designed as well.
Ensuring Load Transfer: Our plans show how the new loads from the dormer are safely transferred down through the existing walls to the foundation. This prevents stress on the surrounding structure and ensures long-term stability.
Code Compliance: A project of this scope requires a building permit. Our stamped plans provide the necessary documentation to ensure your roof modification meets all local building codes and standards. This is especially important in Utah, where snow and seismic loading can play a critical role in the design process.
The Value of Professional Expertise
Why Professional Engineering Matters in Roof Modifications
The Benefits: More Than Just More Space
A structural engineer’s involvement provides you with far more than just a code-compliant drawing. It gives you the peace of mind that your home will be as strong—or stronger—after your roof modification. We help you avoid costly mistakes, minimize material waste, and ensure your contractor has a clear, professional guide to follow from start to finish.
Schedule Your Consultation Today
Ready to transform your living space with a roof modification or dormer installation? Our team of experienced engineers is here to guide you through every step of the process. Contact us today to schedule a consultation or site inspection. Let us help you bring your vision to life with precision and professionalism. Click the button below to get started on your project.
Related Articles
Related
The Garage Transformation: Engineering a Living Space
A garage is often seen as a simple box for cars and storage, but with a growing need for more living space, it's becoming a prime candidate for a conversion. Transforming a garage into a living area—whether it's a home office, a guest suite, or a family room—is an...
Engineering Your Basement: From Foundation to Finished Living Space
A basement is a blank slate full of potential. For many Utah homeowners, converting a dark, underutilized basement into a functional living space—whether a guest suite, a home gym, or a full basement apartment—is a fantastic way to add significant value and livable...
The Structural Engineering Behind Rooftop A/C and Attic Furnaces
As homeowners continually seek ways to maximize space and improve energy efficiency, HVAC systems are moving to places you might not expect: the roof and the attic. Installing an A/C unit on your roof or placing a furnace in your attic offers compelling benefits,...
